Eladó újszerű ikerház - Szigetszentmiklós

Energiatakarékos!
Energiatakarékos
KAPCSOLAT
Meznyik György


+36 30 737

meznyik.gyorgy@

Az időpont kérés naptár ikonja
IDŐPONTOT KÉREK
A visszahívás kérés telefon ikonja egy azt körbe ölelő nyíllal
VISSZAHÍVÁST KÉREK
Ajánlom egy ismerősömnek ikon
AJÁNLOM EGY ISMERŐSÖMNEK
Facebook megosztás ikon
MEGOSZTÁS

KAPCSOLATFELVÉTEL

Küldés

Az üzenetet sikeresen elküldtük!
Hiba történt!
INGATLAN ADATAI

Ingatlan jellege

ikerház

Belső terület

127 m²

Telek terület

608 m²

Tájolás

nyugat

Építési állapot

újszerű

Építési mód

tégla

Szobák száma

5 szoba

Terasz

20 m²

Épület szintje

1.

Épült

2019

Akadálymentes

igen

Ingatlan állapot

kívül: újszerű
belül: újszerű

Klíma

van

Szigetelés

15 cm

Ablak szerkezete

3 rétegű thermoplan

Napelem

5.00 kW

Fűtés

cirko

Komfort

összkomfort

Parkolás

van fedett felszíni beálló

Közműállapot

csatorna: bekötve
gáz: bekötve
villany: bekötve
víz: bekötve

Energetika

A+:

Az időpont kérés naptár ikonja
HTML
Az időpont kérés naptár ikonja
PDF
Eladó újszerű ikerház
Ingatlan azonosító:
2620_rid

Pest megye, Szigetszentmiklós, (Tihanyi lakópark), Szellőrózsa

Irányár

189.9 M Ft
(1.5 M Ft/㎡)

Szobák

5 szoba

Terület

127 m²

Telek terület

608 m²
INGATLAN LEÍRÁSA
CSEPEL HATÁRÁBAN, A TIHANYI LAKÓPARKBAN MEGVÉTELRE KÍNÁLUNK EGY TÖKÉLETES ADOTTSÁGÚ CSALÁDI HÁZAT!


MEDENCÉS, SZAUNÁS, KANDALLÓS, NAPELEMES CSALÁDI HÁZ A TIHANYI LAKÓPARKBAN

Az ingatlan Csepel közvetlen közelében található,Budapest déli részével határos, közigazgatásilag Szigetszentmiklóshoz tartozik. Elhelyezkedése ideális: a főváros belvárosa gyorsan és kényelmesen megközelíthető, a Csepeli gerinc úton,miközben elkerülhető a Szigetszentmiklósi agglomerációs csúcsforgalom és a hosszadalmas araszolás. Tökéletes választás azoknak, akik nyugodtabb, kertvárosias környezetben szeretnének élni, de fontos számukra Budapest könnyű elérhetősége. Ez az a ház, ahol minden részlet tudatos tervezés eredménye.

Csepel közvetlen szomszédságában, a közkedvelt Tihanyi lakóparkban, nyugodt, madárcsicsergős, alacsony forgalmú kertvárosi környezetben kínálunk megvételre egy 2019-ben épült, újszerű állapotú, prémium minőségű, önálló, körbejárható családi házat, amelyet a tulajdonosok saját részre, hosszú távra, minden igényt figyelembe véve, gondosan átgondolt tervek alapján alakítottak ki.

A ház nem iker, kizárólag a telek rendelkezik ügyvéd által ellenjegyzett használati megosztással.

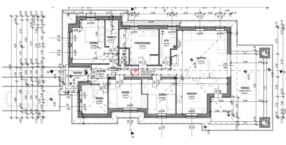
A 127 m² nettó lakótér kiváló elosztású: tágas előtér, külön mosókonyha beépített szekrényekkel, 4 hálószoba, amerikai konyhás nappali–étkező, ahol egy épített, fa tüzelésű kandalló gondoskodik az otthonos hangulatról és a kiegészítő fűtésről, valamint egy igényes fürdőszoba saját szaunával és WC-vel.

A négy hálószoba közül az egyik közel 20 m² alapterületű, amely méretének és elhelyezkedésének köszönhetően akár egy külön kis garzon kialakítására is alkalmas lehet.

A nappaliból közvetlen kijárat nyílik egy 20 m²-es teraszra, amely kitekerős naprolóval felszerelt, ideális pihenő- és étkezőhelyként.

A belső terek egyedi belsőépítészeti tervek szerint készültek, minden helyiségben rejtett világítással. Az egyedileg tervezett, teljesen gépesített konyha, valamint a minőségi beépített bútorok a vételár részét képezik.

A ház komfortja és energiahatékonysága kiemelkedő:
padlófűtés az egész ingatlanban, gázcirkó fűtés és melegvíz-ellátás, 4 darab hűtő–fűtő klíma, valamint egy 5 kW teljesítményű napelemes rendszer, amely jelentősen csökkenti a rezsiköltségeket.

A biztonságot riasztórendszer, videós kaputelefon és hangvezérlésű kapunyitás biztosítja.

A 608 m²-es telek kialakítása a funkcionalitást és a kikapcsolódást egyaránt szolgálja. A kertben helyet kapott egy fedett kiülővel kialakított nyári konyha, egy téglából épült kis ház, ahol minden kerti eszköz kényelmesen elfér, továbbá WC-vel és vízvételi lehetőséggel is rendelkezik.

A pihenést egy 3×6,3 méteres, fedett medence ellenáramoltatóval és rejtett világítással teszi teljessé.

Az első udvarrészen több autó számára alkalmas, fedett, térkövezett gépkocsibeálló található, elektromos kapun keresztül megközelíthetően.

A kert gondozott, füvesített, fúrt kútról működő automata öntözőrendszerrel.

Műszaki tartalom:
30 cm-es Porotherm falazat, 15 cm grafitos hőszigetelés, Bramac tetőcserép, 3 rétegű műanyag nyílászárók elektromos redőnnyel és szúnyoghálóval, minőségi beltéri és bejárati ajtók.

A ház külön villany-, gáz- és vízórákkal rendelkezik.
A környezet kimondottan családbarát: csendes, kertes házas övezet, minimális átmenő forgalommal. Iskola, óvoda, buszmegálló és bevásárlási lehetőségek rövid időn belül elérhetők.

Akár 20% önerővel is megvásárolható.

Ingyenes hitel- és CSOK Plusz ügyintézés, előminősítés, jogi tanácsadás, energetikai tanúsítvány, valamint igény esetén felújítási és költöztetési segítség biztosított.

Ez egy ritka adottságú, tudatosan megtervezett, valóban önálló otthon.

Személyesen mutatja meg az igazi értékét.
Keressen bizalommal, akár hétvégén is.



INGATLAN ADATAI

Ingatlan jellege
ikerház
Belső terület
127 m²
Telek terület
608 m²
Tájolás
nyugat
Építési állapot
újszerű
Építési mód
tégla
Szobák száma
5 szoba
Terasz
20 m²
Épület szintje
1.
Épült
2019
Akadálymentes
igen
Ingatlan állapot
kívül: újszerű
belül: újszerű
Klíma
van
Szigetelés
15 cm
Ablak szerkezete
3 rétegű thermoplan
Napelem
5.00 kW
Fűtés
cirko
Komfort
összkomfort
Parkolás
van fedett felszíni beálló
Közműállapot
csatorna: bekötve
gáz: bekötve
villany: bekötve
víz: bekötve
Energetika
A+:
TÉRKÉP

Pest megye, Szigetszentmiklós, Szellőrózsa

Hitelkalkulátor


KAPCSOLAT
Meznyik György
Meznyik György


+36 30 737 0423

meznyik.gyorgy@ridom.hu

KAPCSOLAT
Meznyik György

+36 30 737

meznyik.gyorgy@

Az időpont kérés naptár ikonja
IDŐPONTOT KÉREK
A visszahívás kérés telefon ikonja egy azt körbe ölelő nyíllal
VISSZAHÍVÁST KÉREK
Ajánlom egy ismerősömnek ikon
AJÁNLOM EGY ISMERŐSÖMNEK
Facebook megosztás ikon
MEGOSZTÁS

KAPCSOLATFELVÉTEL

Küldés

Az üzenetet sikeresen elküldtük!
Hiba történt!
INGATLAN ADATAI

Ingatlan jellege

ikerház

Belső terület

127 m²

Telek terület

608 m²

Tájolás

nyugat

Építési állapot

újszerű

Építési mód

tégla

Szobák száma

5 szoba

Terasz

20 m²

Épület szintje

1.

Épült

2019

Ingatlan állapot

kívül: újszerű
belül: újszerű

Klíma

van

Szigetelés

15 cm

Ablak szerkezete

3 rétegű thermoplan

Napelem

5.00 kW

Fűtés

cirko

Komfort

összkomfort

Parkolás

van fedett felszíni beálló

Közműállapot

csatorna: bekötve
gáz: bekötve
villany: bekötve
víz: bekötve

Energetika

A+:

Az időpont kérés naptár ikonja
HTML
Az időpont kérés naptár ikonja
PDF
Pest megye - Szigetszentmiklós
Pest megye - Szigetszentmiklós
Pest megye - Szigetszentmiklós
Pest megye - Szigetszentmiklós
Pest megye - Szigetszentmiklós
Pest megye - Szigetszentmiklós
Pest megye - Szigetszentmiklós
Pest megye - Szigetszentmiklós
Pest megye - Szigetszentmiklós
Pest megye - Szigetszentmiklós
Pest megye - Szigetszentmiklós
Pest megye - Szigetszentmiklós
Pest megye - Szigetszentmiklós
Pest megye - Szigetszentmiklós
Pest megye - Szigetszentmiklós
Pest megye - Szigetszentmiklós
Pest megye - Szigetszentmiklós
Pest megye - Szigetszentmiklós
Pest megye - Szigetszentmiklós
Pest megye - Szigetszentmiklós
Pest megye - Szigetszentmiklós
Pest megye - Szigetszentmiklós
Pest megye - Szigetszentmiklós
Pest megye - Szigetszentmiklós
Pest megye - Szigetszentmiklós
Pest megye - Szigetszentmiklós
Pest megye - Szigetszentmiklós
Pest megye - Szigetszentmiklós
Pest megye - Szigetszentmiklós
Pest megye - Szigetszentmiklós