Eladó ikerház - Siófok

KAPCSOLAT
Tereczi Gabi


+36 30 911

tereczi.gabi@

Az időpont kérés naptár ikonja
IDŐPONTOT KÉREK
A visszahívás kérés telefon ikonja egy azt körbe ölelő nyíllal
VISSZAHÍVÁST KÉREK
Ajánlom egy ismerősömnek ikon
AJÁNLOM EGY ISMERŐSÖMNEK
Facebook megosztás ikon
MEGOSZTÁS

KAPCSOLATFELVÉTEL

Küldés

Az üzenetet sikeresen elküldtük!
Hiba történt!
INGATLAN ADATAI

Ingatlan jellege

ikerház

Belső terület

155 m²

Telek terület

490 m²

Tájolás

délnyugat

Építési állapot

használt

Építési mód

tégla

Szobák száma

7 szoba

Épület szintje

3.

Épült

kb. 1983

Ingatlan állapot

kívül: kitűnő
belül: jó

Szigetelés

12 cm

Ablak szerkezete

2 rétegű thermoplan

Fűtés

cirko

Komfort

duplakomfort

Közműállapot

csatorna: bekötve
gáz: bekötve
villany: bekötve
víz: bekötve

Energetika

nincs megadva

Az időpont kérés naptár ikonja
HTML
Az időpont kérés naptár ikonja
PDF
Eladó ikerház
Ingatlan azonosító:
2628_rid

Somogy megye, Siófok, Balatonkiliti

Akciós ár

110 M Ft
(709.68 E Ft/㎡)

Eredeti irányár

120 M Ft

Szobák

7 szoba

Terület

155 m²

Telek terület

490 m²
INGATLAN LEÍRÁSA
Kiváló lehetőség Siófokon – tágas családi ház + külön apartman, csendes környezetben!
490 m²-es telken elhelyezkedő, összesen 155 m² 7 szobás lakóterületű családi ház, kiegészítve egy különálló, 40 m²-es apartmannal, kivételes lehetőséget kínál mindazok számára, akik tágas, többfunkciós ingatlant keresnek Siófokon.
Az épület részben felújított, jó állapotú, így már jelenlegi formájában is kényelmesen lakható, ugyanakkor további korszerűsítéssel még magasabb szintre emelhető. A több szintnek, és önálló lépcsőháznak köszönhetően a belső terek jól elkülöníthetők, így ideális nagycsaládosok számára, vagy akár több generáció együttélésére is.
A külön bejárattal rendelkező apartman további értéket képvisel: tökéletesen alkalmas vendégek fogadására, de akár kiadásra is, így folyamatos bevételi forrást biztosíthat.
Az ingatlan egyik legnagyobb előnye a kiváló elhelyezkedés, amely egyszerre biztosít nyugodt lakókörnyezetet és könnyű elérhetőséget. A ház tehermentes, rendezett, így az adásvétel gyorsan és gördülékenyen lebonyolítható.
Összességében ez az ingatlan ideális választás mindazok számára, akik értékálló, sok lehetőséget rejtő otthont vagy befektetést keresnek a Balaton egyik legnépszerűbb városában.
A közelben bevásárlási lehetőségek, szolgáltatások ,iskolák, óvodák könnyen elérhetők, miközben a környék csendes, élhető és biztonságos.
Szintek bemutatása – átgondolt elrendezés, kiváló szeparálhatóság
Az ingatlan egyik legnagyobb előnye a többszintes kialakítás és a külön lépcsőház, amely lehetővé teszi az egyes szintek praktikus elkülönítését. Ennek köszönhetően a ház tökéletesen alkalmas akár több generáció együttélésére, vagy külön életterek kialakítására, miközben minden lakó megőrizheti saját privát szféráját.
Földszint – funkcionális, jól kihasználható terek
A földszinten egy átgondolt elrendezésű lakótér található, ahol az előszobából nyíló helyiségek kényelmes mindennapi használatot biztosítanak. A konyha és étkező ideális családi étkezésekhez, míg a kamra praktikus tárolási lehetőséget kínál. A külön WC és a lépcsőház jól elkülönülten helyezkedik el.
A szint egyik kiemelkedő eleme a közvetlen teraszkapcsolat (21 m²), amely kiváló helyszínt biztosít pihenésre vagy baráti összejövetelekhez.
Kiegészítő helyiségek:
• garázs, amely kényelmes parkolást biztosít
• hobbihelyiség (~20 m²), amely sokoldalúan hasznosítható: dolgozószobaként, vendégtérként vagy akár külön lakrészként is kialakítható
Emelet – tágas közösségi és lakóterek
Az első szint a ház életközpontja, ahol egy közel 20 m²-es, világos nappali fogad. Innen nyílik a két külön bejáratú hálószoba, amelyek ideális méretűek és jól bútorozhatók.
A fürdőszoba és a külön WC növeli a komfortérzetet, míg a közlekedő és tároló helyiségek a praktikumot szolgálják.
A szinthez tartozó két erkély (összesen ~14 m²) kellemes kültéri kapcsolatot biztosít, így a lakók a friss levegőt és a nyugodt környezetet is élvezhetik.
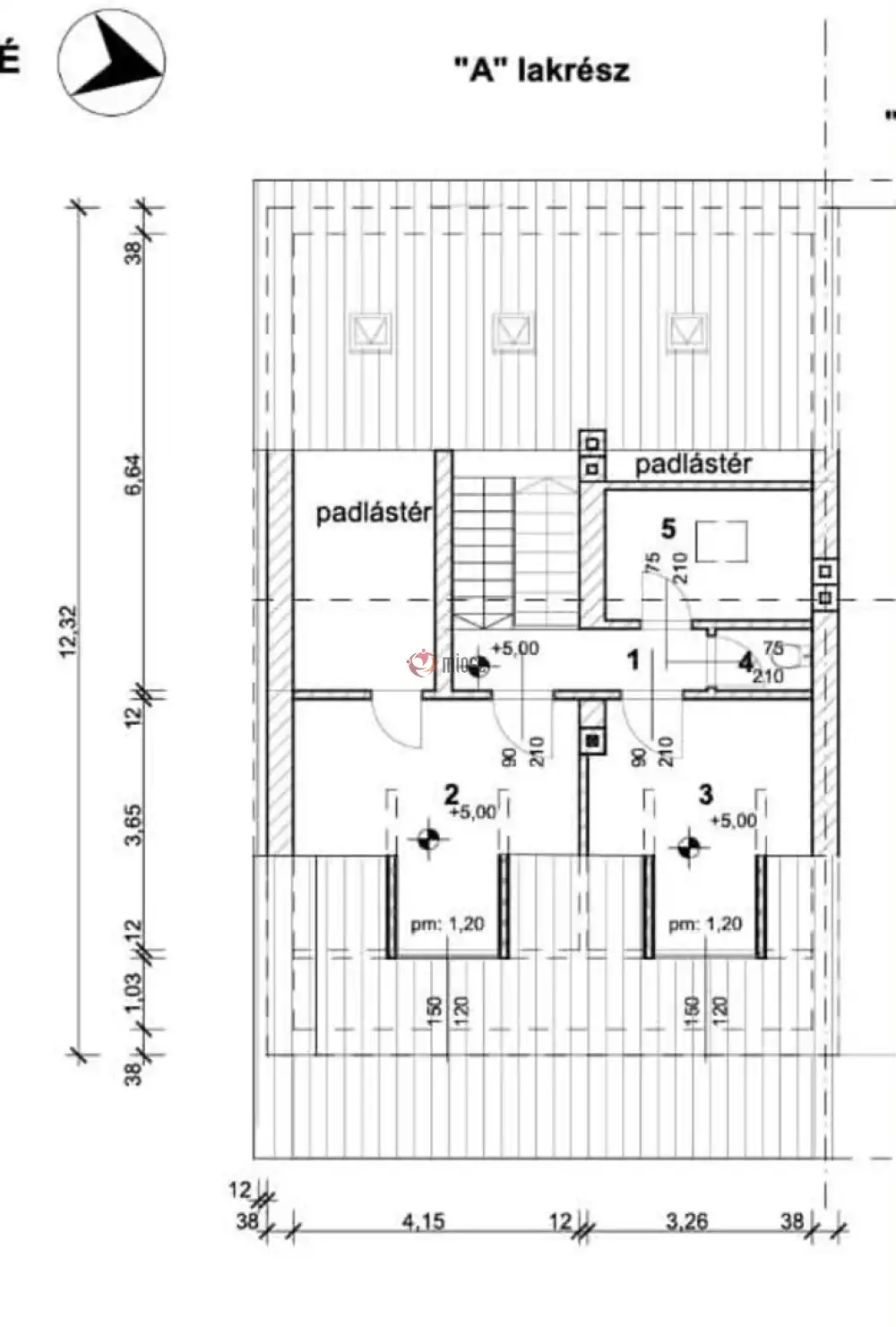
Tetőtér – elkülönített privát lakrész
A tetőtérben kialakított két hálószoba, közlekedő, valamint zuhanyzós fürdőszoba különösen alkalmassá teszi ezt a szintet privát lakrésznek. Ideális lehet:
• gyerekek számára saját élettérként
• vendégek fogadására
Ez a kialakítás ritka előny, amely hosszú távon is értéket és sokoldalúságot biztosít az ingatlan számára.
Műszaki tartalom – korszerűsített, rugalmas megoldások
Az ingatlan műszaki szempontból is kedvező adottságokkal rendelkezik: a részleges felújítás során több fontos korszerűsítés már megtörtént, ugyanakkor további fejlesztési lehetőségeket is magában rejt.
A ház új, két rétegű műanyag nyílászárókkal felszerelt, amelyek hozzájárulnak a jobb hő- és hangszigeteléshez, ezáltal növelik a lakókomfortot és csökkentik a fenntartási költségeket.
A homlokzat friss hőszigetelést kapott, amely:
• 12 cm vastag grafit szigetelésből áll,
• az erkélyeknél pedig 15 cm vastag szigetelés került kialakításra,
ezáltal az épület energetikai szempontból is kedvezőbb besorolás felé mozdult el.
A fűtési rendszer egyik kiemelkedő előnye a többféle megoldás együttes jelenléte, amely maximális rugalmasságot biztosít:
• az emeleten Kvazár Plusz vizes konvektorok működnek,
• a földszinten központi kazán radiátoros hőleadással,
• emellett hagyományos konvektorok is rendelkezésre állnak,
• a nappaliban pedig vegyestüzelésű kazán biztosít alternatív fűtési lehetőséget
Ez a kombinált rendszer lehetővé teszi, hogy a tulajdonos az aktuális energiaárakhoz és igényekhez igazodva válassza ki a legkedvezőbb fűtési módot, így hosszú távon költséghatékony üzemeltetést biztosít.
Összességében az ingatlan műszaki állapota stabil alapot nyújt, amely már most is kényelmes használatot biztosít, ugyanakkor további korszerűsítéssel még magasabb értéket képviselhet.
Különálló apartman(külön épület) – extra lehetőség!
Az ingatlanhoz tartozik egy kb. 40 m²-es, 2 szobás, fürdőszobás apartman, amely:
• külön bejárattal rendelkezik( teljesen leválasztható kerttel)
• felújítandó, így saját igény szerint alakítható
• tökéletes kiadásra vagy vendégek fogadására

Az ingatlan alkalmas CSOK igénybevételére, valamint elérhető hozzá az Otthon Start program keretében nyújtott, kedvezményes, 3%-os lakáshitel.A megvásárlás már akár 10% önerővel is lehetséges.Ügyfeleink számára teljes körű, díjmentes hitel- és CSOK-ügyintézést biztosítunk, amely nem kizárólag az általunk kínált ingatlanokra vonatkozik. Igény esetén személyre szabott pénzügyi kalkulációt és előzetes hitelbírálatot is készítünk.Az adásvételi folyamat során cégünk ügyvédje végig rendelkezésre áll, és jogi tanácsadással segíti a biztonságos ügyintézést. Várom megtisztelő megkeresését.




INGATLAN ADATAI

Ingatlan jellege
ikerház
Belső terület
155 m²
Telek terület
490 m²
Tájolás
délnyugat
Építési állapot
használt
Építési mód
tégla
Szobák száma
7 szoba
Épület szintje
3.
Épült
kb. 1983
Ingatlan állapot
kívül: kitűnő
belül: jó
Szigetelés
12 cm
Ablak szerkezete
2 rétegű thermoplan
Fűtés
cirko
Komfort
duplakomfort
Közműállapot
csatorna: bekötve
gáz: bekötve
villany: bekötve
víz: bekötve
Energetika
nincs megadva
TÉRKÉP

Somogy megye, Siófok, Balatonkiliti

Hitelkalkulátor


KAPCSOLAT
Tereczi Gabi
Tereczi Gabi


+36 30 911 3339

tereczi.gabi@ridom.hu

KAPCSOLAT
Tereczi Gabi

+36 30 911

tereczi.gabi@

Az időpont kérés naptár ikonja
IDŐPONTOT KÉREK
A visszahívás kérés telefon ikonja egy azt körbe ölelő nyíllal
VISSZAHÍVÁST KÉREK
Ajánlom egy ismerősömnek ikon
AJÁNLOM EGY ISMERŐSÖMNEK
Facebook megosztás ikon
MEGOSZTÁS

KAPCSOLATFELVÉTEL

Küldés

Az üzenetet sikeresen elküldtük!
Hiba történt!
INGATLAN ADATAI

Ingatlan jellege

ikerház

Belső terület

155 m²

Telek terület

490 m²

Tájolás

délnyugat

Építési állapot

használt

Építési mód

tégla

Szobák száma

7 szoba

Épület szintje

3.

Épült

kb. 1983

Ingatlan állapot

kívül: kitűnő
belül: jó

Szigetelés

12 cm

Ablak szerkezete

2 rétegű thermoplan

Fűtés

cirko

Komfort

duplakomfort

Közműállapot

csatorna: bekötve
gáz: bekötve
villany: bekötve
víz: bekötve

Energetika

nincs megadva

Az időpont kérés naptár ikonja
HTML
Az időpont kérés naptár ikonja
PDF
Somogy megye - Siófok
Somogy megye - Siófok
Somogy megye - Siófok
Somogy megye - Siófok
Somogy megye - Siófok
Somogy megye - Siófok
Somogy megye - Siófok
Somogy megye - Siófok
Somogy megye - Siófok
Somogy megye - Siófok
Somogy megye - Siófok
Somogy megye - Siófok
Somogy megye - Siófok
Somogy megye - Siófok
Somogy megye - Siófok
Somogy megye - Siófok
Somogy megye - Siófok
Somogy megye - Siófok
Somogy megye - Siófok
Somogy megye - Siófok